Podezřelý prodej pozemku Pražských služeb na Dolním Žižkově
13.1.2015 Michal Vronský 10

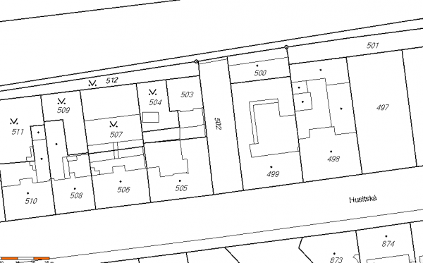
V těchto dnech probíhá prodej pozemku na Dolním Žižkově s parc. č. 503 (Katastrální území Žižkov). Jde o nezastavěné území přiléhající k cyklostezce, které dnes slouží jako parkoviště. Kupující strana (Vavrica architekti, s.r.o.) tvrdí, že již pozemek koupila, Pražské služby zase, že jednání teprve proběhne ve středu.
Zajímavé je, že současný majitel pozemku Pražské služby, a.s. neměl původně v úmyslu pozemek prodávat. V létě loňského roku však nečekaně vyhlásil veřejnou soutěž, kterou vyhrála slovenská firma Vavrica Architekti, s.r.o. Společníkem této společnosti je pan Ing. arch. Peter Vavrica, bývalý slovenský komunální politik, s jehož jménem je na Slovensku historicky spojeno více než 20 obchodních společností. Společnosti, v nichž pan Vavrica působil či působí, jsou spojeny i s některými stavebními kauzami, jako například problémy s odpadní vodou při stavbě v chráněné krajinné oblasti Malých Karpat či rekonstrukce Zámocké ulice v Bratislavě.
Aktivita s nákupem pozemku č. 503 přitom není jedinou aktivitou pana Vavricy na Žižkově. Jeden dům hodlá stavět na adrese Koněvova 49 a další v proluce ulice Pod Vítkovem. Tato pětipatrová polyfunkční stavba (na pozemku č. 499) bude vzdálena doslova jen pár metrů od pozemku č. 503.
Zjišťujeme další podrobnosti.

Podpořeno grantem z Islandu, Lichtenštejnska a Norska v rámci EHP fondů.
13.1.2015 Michal Vronský 10
Prodej byl absolútně standardní a legitímní | ARCHIKOD | 13.3.2015 19:30 | |
![]() |
Nespokojný klient | 31.3.2015 13:36 | |
Vizualizace | Radek | 15.1.2015 14:32 | |
![]() |
zdena | 15.1.2015 15:27 | |
![]() ![]() |
Radek | 15.1.2015 19:41 | |
![]() ![]() ![]() |
zdena. | 15.1.2015 20:35 | |
pozemek | zdenek | 15.1.2015 11:56 | |
pozemek | zdena. | 15.1.2015 11:50 | |
souvislosti | zdenek | 14.1.2015 15:02 | |
Tak nevím. Článek se pohoršuje nad tím, | Radek | 13.1.2015 18:18 |
Zobrazit vše Zobrazit vybrané Vložit příspěvek